
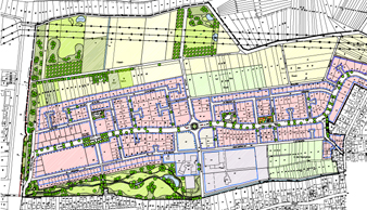
Grünordnungsplan zum Bebauungsplan „Im Brühl“
Auftraggeber: Gemeinde Egelsbach
Planungszeitraum: 2004-2005
Gesamtfläche: ca. 52 ha
Planungsleistungen: städtebaulicher Gestaltungsplan, Bebauungsplan, Grünordnungsplan, Landschaftsplan, Gutachten zur Bauleitplanung, Freiraumplanung, Ausgleichsplanung
Auftraggeber: Gemeinde Egelsbach
Planungszeitraum: 2004-2005
Gesamtfläche: ca. 52 ha
Planungsleistungen: städtebaulicher Gestaltungsplan, Bebauungsplan, Grünordnungsplan, Landschaftsplan, Gutachten zur Bauleitplanung, Freiraumplanung, Ausgleichsplanung

Grünordnungsplan zum Bebauungsplan „Gründauaue“
Auftraggeber: Stadt Langenselbold
Planungszeitraum: 2007-2008
Gesamtfläche: ca. 11,4 ha
Planungsleistungen: Abweichungsantrag vom Regionalplan, städtebaulicher Gestaltungsplan, Bebauungsplan, Grünordnungsplan, Landschaftsplan, Gutachten zur Bauleitplanung, Freiraumplanung, Ausgleichsplanung
Auftraggeber: Stadt Langenselbold
Planungszeitraum: 2007-2008
Gesamtfläche: ca. 11,4 ha
Planungsleistungen: Abweichungsantrag vom Regionalplan, städtebaulicher Gestaltungsplan, Bebauungsplan, Grünordnungsplan, Landschaftsplan, Gutachten zur Bauleitplanung, Freiraumplanung, Ausgleichsplanung
