
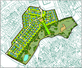
Städtebaulicher Gestaltungsplan „Niedertal III“
Auftraggeber: Stadt Langenselbold
Planungszeitraum: 2014 - 2016
Gesamtfläche: ca. 8 ha
Planungsleistungen: Gestaltungsplan, Landschaftsplan, Bebauungsplan
Auftraggeber: Stadt Langenselbold
Planungszeitraum: 2014 - 2016
Gesamtfläche: ca. 8 ha
Planungsleistungen: Gestaltungsplan, Landschaftsplan, Bebauungsplan

Städtebaulicher Gestaltungsplan „Gründauauen“
Auftraggeber: Stadt Langenselbold
Planungszeitraum: 2007 - 2008
Gesamtfläche: ca. 11 ha
Planungsleistungen: Gestaltungsplan, Landschaftsplan, Bebauungsplan
Auftraggeber: Stadt Langenselbold
Planungszeitraum: 2007 - 2008
Gesamtfläche: ca. 11 ha
Planungsleistungen: Gestaltungsplan, Landschaftsplan, Bebauungsplan

Städtebaulicher Gestaltungsplan Freianlagen „Neue Mitte II“
Auftraggeber: Stadt Erlensee
Planungszeitraum: 2016 - 2017
Gesamtfläche: ca. 10 ha
Planungsleistungen: Städtebauliches Strukturkonzept
Auftraggeber: Stadt Erlensee
Planungszeitraum: 2016 - 2017
Gesamtfläche: ca. 10 ha
Planungsleistungen: Städtebauliches Strukturkonzept

Städtebaulicher Gestaltungsplan "Baugebiet Nr. 70"
Auftraggeber: Stadt Dietzenbach
Planungszeitraum: 2010 - 2011
Gesamtfläche: ca. 6 ha
Planungsleistungen: Städtebauliches Strukturkonzept
Auftraggeber: Stadt Dietzenbach
Planungszeitraum: 2010 - 2011
Gesamtfläche: ca. 6 ha
Planungsleistungen: Städtebauliches Strukturkonzept

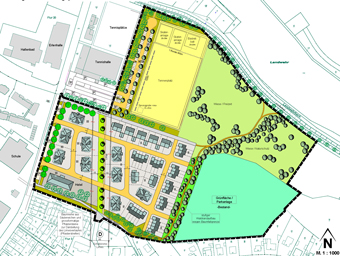
Städtebaulicher Gestaltungsplan „Büchensaal“
Auftraggeber: Stadt Erlensee
Planungszeitraum: 2014 - 2015
Gesamtfläche: ca. 8,7 ha
Planungsleistungen: Städtebauliches Strukturkonzept
Auftraggeber: Stadt Erlensee
Planungszeitraum: 2014 - 2015
Gesamtfläche: ca. 8,7 ha
Planungsleistungen: Städtebauliches Strukturkonzept
