
Bebauungsplan „Im Brühl“
Auftraggeber: Gemeinde Egelsbach
Planungszeitraum: 2004-2005
Gesamtfläche: ca. 52 ha
Planungsleistungen: städtebaulicher Gestaltungsplan, Bebauungsplan, Landschaftsplan, Gutachten zur Bauleitplanung, Freiraumplanung, Ausgleichsplanung
Auftraggeber: Gemeinde Egelsbach
Planungszeitraum: 2004-2005
Gesamtfläche: ca. 52 ha
Planungsleistungen: städtebaulicher Gestaltungsplan, Bebauungsplan, Landschaftsplan, Gutachten zur Bauleitplanung, Freiraumplanung, Ausgleichsplanung

Bebauungsplan Gewerbepark „An der Wann“
Auftraggeber: Gemeinde Linsengericht
Planungszeitraum: 2010-2011
Gesamtfläche: ca. 16 ha
Planungsleistungen: Bebauungsplan, Landschaftsplan, Gutachten zur Bauleitplanung, Ausgleichsplanung
Auftraggeber: Gemeinde Linsengericht
Planungszeitraum: 2010-2011
Gesamtfläche: ca. 16 ha
Planungsleistungen: Bebauungsplan, Landschaftsplan, Gutachten zur Bauleitplanung, Ausgleichsplanung

Bebauungsplan „Nordumgehung Sinntal K 939“
Auftraggeber: Gemeinde Sinntal
Planungszeitraum: 2005-2015
Gesamtfläche: ca. 14 ha
Planungsleistungen: Aufstellung Bebauungsplan, Gutachten zur Bauleitplanung, Ausgleichsplanung, Landschaftspflegerischer Begleitplan
Auftraggeber: Gemeinde Sinntal
Planungszeitraum: 2005-2015
Gesamtfläche: ca. 14 ha
Planungsleistungen: Aufstellung Bebauungsplan, Gutachten zur Bauleitplanung, Ausgleichsplanung, Landschaftspflegerischer Begleitplan

Bebauungsplan Mischgebiet „Quellenhof“
Auftraggeber: Stadt Bad Orb
Planungszeitraum: 2009-2010
Gesamtfläche: ca. 1,8 ha
Planungsleistungen: Änderung Flächennutzungsplan, Bebauungsplan
Auftraggeber: Stadt Bad Orb
Planungszeitraum: 2009-2010
Gesamtfläche: ca. 1,8 ha
Planungsleistungen: Änderung Flächennutzungsplan, Bebauungsplan

Bebauungsplan Wohngebiet „Gründauaue“
Auftraggeber: Stadt Langenselbold
Planungszeitraum: 2007-2008
Gesamtfläche: ca. 12 ha
Planungsleistungen: Bebauungsplan, Landschaftsplan, Gutachten zur Bauleitplanung, Ausgleichsplanung
Auftraggeber: Stadt Langenselbold
Planungszeitraum: 2007-2008
Gesamtfläche: ca. 12 ha
Planungsleistungen: Bebauungsplan, Landschaftsplan, Gutachten zur Bauleitplanung, Ausgleichsplanung

Bebauungsplan „Sportzentrum“
Auftraggeber: Stadt Langenselbold
Planungszeitraum: 2007-2008
Gesamtfläche: ca. 13 ha
Planungsleistungen: Aufstellung Bebauungsplan, Aufstellung Landschaftsplan, Gutachten zur Bauleitplanung, Ausgleichsplanung
Auftraggeber: Stadt Langenselbold
Planungszeitraum: 2007-2008
Gesamtfläche: ca. 13 ha
Planungsleistungen: Aufstellung Bebauungsplan, Aufstellung Landschaftsplan, Gutachten zur Bauleitplanung, Ausgleichsplanung

Bebauungsplan Wohngebiet „Mittelbuchen West“
Auftraggeber: Stadt Hanau
Planungszeitraum: 2006
Gesamtfläche: ca. 11 ha
Planungsleistungen: Bebauungsplan, Landschaftsplan, Gutachten zur Bauleitplanung, Ausgleichsplanung
Auftraggeber: Stadt Hanau
Planungszeitraum: 2006
Gesamtfläche: ca. 11 ha
Planungsleistungen: Bebauungsplan, Landschaftsplan, Gutachten zur Bauleitplanung, Ausgleichsplanung

Bebauungsplan Wohngebiet „Vor dem Neuen Friedhof“
Auftraggeber: Gemeinde Erlensee
Planungszeitraum: 2000-2001
Gesamtfläche: ca. 7,9 ha
Planungsleistungen: Bebauungsplan, Landschaftsplan, Gutachten zur Bauleitplanung, Ausgleichsplanung
Auftraggeber: Gemeinde Erlensee
Planungszeitraum: 2000-2001
Gesamtfläche: ca. 7,9 ha
Planungsleistungen: Bebauungsplan, Landschaftsplan, Gutachten zur Bauleitplanung, Ausgleichsplanung

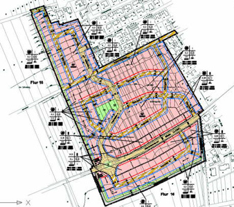
Bebauungsplan „Im Niedertal I“
Auftraggeber: Stadt Langenselbold
Planungszeitraum: 2000
Gesamtfläche: ca. 9 ha
Planungsleistungen: Bebauungsplan, Landschaftsplan, Gutachten zur Bauleitplanung, Ausgleichsplanung
Auftraggeber: Stadt Langenselbold
Planungszeitraum: 2000
Gesamtfläche: ca. 9 ha
Planungsleistungen: Bebauungsplan, Landschaftsplan, Gutachten zur Bauleitplanung, Ausgleichsplanung

Bebauungsplan „Im Niedertal II“
Auftraggeber: Stadt Langenselbold
Planungszeitraum: 2001-2005
Gesamtfläche: ca. 8 ha
Planungsleistungen: Bebauungsplan, Landschaftsplan, Gutachten zur Bauleitplanung, Ausgleichsplanung
Auftraggeber: Stadt Langenselbold
Planungszeitraum: 2001-2005
Gesamtfläche: ca. 8 ha
Planungsleistungen: Bebauungsplan, Landschaftsplan, Gutachten zur Bauleitplanung, Ausgleichsplanung

Bebauungsplan „Im Niedertal II“
Auftraggeber: Stadt Langenselbold
Planungszeitraum: 2001-2005
Gesamtfläche: ca. 8 ha
Planungsleistungen: Bebauungsplan, Landschaftsplan, Gutachten zur Bauleitplanung, Ausgleichsplanung
Auftraggeber: Stadt Langenselbold
Planungszeitraum: 2001-2005
Gesamtfläche: ca. 8 ha
Planungsleistungen: Bebauungsplan, Landschaftsplan, Gutachten zur Bauleitplanung, Ausgleichsplanung

Bebauungsplan „Im Niedertal II“
Auftraggeber: Stadt Langenselbold
Planungszeitraum: 2001-2005
Gesamtfläche: ca. 8 ha
Planungsleistungen: Bebauungsplan, Landschaftsplan, Gutachten zur Bauleitplanung, Ausgleichsplanung
Auftraggeber: Stadt Langenselbold
Planungszeitraum: 2001-2005
Gesamtfläche: ca. 8 ha
Planungsleistungen: Bebauungsplan, Landschaftsplan, Gutachten zur Bauleitplanung, Ausgleichsplanung

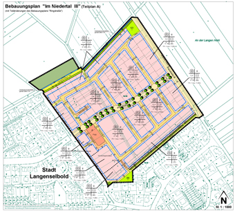
Bebauungsplan „Niedertal III“
Auftraggeber: Stadt Langenselbold
Planungszeitraum: 2014-2016
Gesamtfläche: ca. 8,1 ha
Planungsleistungen: Aufstellung Bebauungsplan, Aufstellung Landschaftsplan, Gutachten zur Bauleitplanung, Ausgleichsplanung
Auftraggeber: Stadt Langenselbold
Planungszeitraum: 2014-2016
Gesamtfläche: ca. 8,1 ha
Planungsleistungen: Aufstellung Bebauungsplan, Aufstellung Landschaftsplan, Gutachten zur Bauleitplanung, Ausgleichsplanung

Bebauungsplan „Niedertal III“
Auftraggeber: Stadt Langenselbold
Planungszeitraum: 2014-2016
Gesamtfläche: ca. 8,1 ha
Planungsleistungen: Aufstellung Bebauungsplan, Aufstellung Landschaftsplan, Gutachten zur Bauleitplanung, Ausgleichsplanung
Auftraggeber: Stadt Langenselbold
Planungszeitraum: 2014-2016
Gesamtfläche: ca. 8,1 ha
Planungsleistungen: Aufstellung Bebauungsplan, Aufstellung Landschaftsplan, Gutachten zur Bauleitplanung, Ausgleichsplanung

Bebauungsplan „Auf dem Hainspiel“
Auftraggeber: Gemeinde Niederdorfelden
Planungszeitraum: 2003-2003
Gesamtfläche: ca. 15 ha
Planungsleistungen: Bebauungsplan, Landschaftsplan, Gutachten zur Bauleitplanung, Ausgleichsplanung, Freiraumplanung
Auftraggeber: Gemeinde Niederdorfelden
Planungszeitraum: 2003-2003
Gesamtfläche: ca. 15 ha
Planungsleistungen: Bebauungsplan, Landschaftsplan, Gutachten zur Bauleitplanung, Ausgleichsplanung, Freiraumplanung

Bebauungsplan „Am Grünen Weg“
Auftraggeber: Gemeinde Büttelborn
Planungszeitraum: 2006
Gesamtfläche: ca. 22 ha
Planungsleistungen: Bebauungsplan, Landschaftsplan, Gutachten zur Bauleitplanung, Ausgleichsplanung, Freiraumplanung
Auftraggeber: Gemeinde Büttelborn
Planungszeitraum: 2006
Gesamtfläche: ca. 22 ha
Planungsleistungen: Bebauungsplan, Landschaftsplan, Gutachten zur Bauleitplanung, Ausgleichsplanung, Freiraumplanung

Bebauungsplan Gemeindebedarfs- und Gewerbefläche „Neue Hauptfeuerwehrwache"
Auftraggeber: Stadt Hanau
Planungszeitraum: 2008
Gesamtfläche: ca. 10 ha
Planungsleistungen: Bebauungsplan
Auftraggeber: Stadt Hanau
Planungszeitraum: 2008
Gesamtfläche: ca. 10 ha
Planungsleistungen: Bebauungsplan

Bebauungsplan Gewerbe- und Wohngebiet „Am Lachbach“
Auftraggeber: Gemeinde Hammersbach
Planungszeitraum: 2001-2004
Gesamtfläche: ca. 14 ha
Planungsleistungen: Bebauungsplan, Landschaftsplan, Gutachten zur Bauleitplanung, Ausgleichsplanung, Freiraumplanung
Auftraggeber: Gemeinde Hammersbach
Planungszeitraum: 2001-2004
Gesamtfläche: ca. 14 ha
Planungsleistungen: Bebauungsplan, Landschaftsplan, Gutachten zur Bauleitplanung, Ausgleichsplanung, Freiraumplanung

Bebauungsplan „Gewerbepark Erlensee“
Auftraggeber: Gemeinde Erlensee
Planungszeitraum: 2005-2007
Gesamtfläche: ca. 30 ha
Planungsleistungen: Bebauungsplan, Landschaftsplan, Gutachten zur Bauleitplanung, Ausgleichsplanung
Auftraggeber: Gemeinde Erlensee
Planungszeitraum: 2005-2007
Gesamtfläche: ca. 30 ha
Planungsleistungen: Bebauungsplan, Landschaftsplan, Gutachten zur Bauleitplanung, Ausgleichsplanung

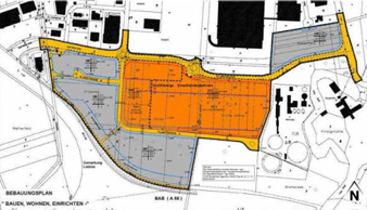
Bebauungsplan Gewerbe- und Sondergebiet „Bauen-Wohnen-Einrichten Gründau“
Auftraggeber: Gemeinde Gründau-Lieblos
Planungszeitraum: 2002-2003
Gesamtfläche: ca. 14 ha
Planungsleistungen: Bebauungsplan, Landschaftsplan, Gutachten zur Bauleitplanung, Ausgleichsplanung
Auftraggeber: Gemeinde Gründau-Lieblos
Planungszeitraum: 2002-2003
Gesamtfläche: ca. 14 ha
Planungsleistungen: Bebauungsplan, Landschaftsplan, Gutachten zur Bauleitplanung, Ausgleichsplanung

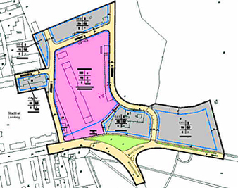
Bebauungsplan Freizeitanlage „Kinzigsee“
Auftraggeber: Stadt Langenselbold
Planungszeitraum: 2007
Gesamtfläche: ca. 11,9 ha
Planungsleistungen: Bebauungsplan, Aufstellung Landschaftsplan, Änderung Flächennutzungsplan
Auftraggeber: Stadt Langenselbold
Planungszeitraum: 2007
Gesamtfläche: ca. 11,9 ha
Planungsleistungen: Bebauungsplan, Aufstellung Landschaftsplan, Änderung Flächennutzungsplan

Bebauungsplan „Spielhallensatzung“
Auftraggeber: Stadt Bad Soden-Salmünster
Planungszeitraum: 2006-2008
Gesamtfläche: ca. 25 ha
Planungsleistungen: Bebauungsplan
Auftraggeber: Stadt Bad Soden-Salmünster
Planungszeitraum: 2006-2008
Gesamtfläche: ca. 25 ha
Planungsleistungen: Bebauungsplan

Fliegerhorst 0.1, 1. Bauabschnitt (2017)
Auftraggeber: Zweckverband Entwicklung Fliegerhorst
Planungszeitraum: 2013-2014
Gesamtfläche: ca. 35 ha
Planungsleistungen: Projektorganisation, Flächennutzungsplan, Bebauungsplan, Landschaftsplan, Artenschutzprüfung etc.
Auftraggeber: Zweckverband Entwicklung Fliegerhorst
Planungszeitraum: 2013-2014
Gesamtfläche: ca. 35 ha
Planungsleistungen: Projektorganisation, Flächennutzungsplan, Bebauungsplan, Landschaftsplan, Artenschutzprüfung etc.

Fliegerhorst 0.1, 1. Bauabschnitt (2017)
Auftraggeber: Zweckverband Entwicklung Fliegerhorst
Planungszeitraum: 2013-2014
Gesamtfläche: ca. 35 ha
Planungsleistungen: Projektorganisation, Flächennutzungsplan, Bebauungsplan, Landschaftsplan, Artenschutzprüfung etc.
Auftraggeber: Zweckverband Entwicklung Fliegerhorst
Planungszeitraum: 2013-2014
Gesamtfläche: ca. 35 ha
Planungsleistungen: Projektorganisation, Flächennutzungsplan, Bebauungsplan, Landschaftsplan, Artenschutzprüfung etc.

Fliegerhorst 0.2 (2017)
Auftraggeber: Zweckverband Entwicklung Fliegerhorst
Planungszeitraum: 2013-2014
Gesamtfläche: ca. 10 ha
Planungsleistungen: Projektorganisation, Flächennutzungsplan, Bebauungsplan, Landschaftsplan, Artenschutzprüfung etc.
Auftraggeber: Zweckverband Entwicklung Fliegerhorst
Planungszeitraum: 2013-2014
Gesamtfläche: ca. 10 ha
Planungsleistungen: Projektorganisation, Flächennutzungsplan, Bebauungsplan, Landschaftsplan, Artenschutzprüfung etc.

Fliegerhorst 0.2 (2017)
Auftraggeber: Zweckverband Entwicklung Fliegerhorst
Planungszeitraum: 2013-2014
Gesamtfläche: ca. 10 ha
Planungsleistungen: Projektorganisation, Flächennutzungsplan, Bebauungsplan, Landschaftsplan, Artenschutzprüfung etc.
Auftraggeber: Zweckverband Entwicklung Fliegerhorst
Planungszeitraum: 2013-2014
Gesamtfläche: ca. 10 ha
Planungsleistungen: Projektorganisation, Flächennutzungsplan, Bebauungsplan, Landschaftsplan, Artenschutzprüfung etc.

Fliegerhorst 0.3 Sportzentrum (2016)
Auftraggeber: Zweckverband Entwicklung Fliegerhorst
Planungszeitraum: 2013-2014
Gesamtfläche: ca. 7 ha
Planungsleistungen: Projektorganisation, Flächennutzungsplan, Bebauungsplan, Landschaftsplan, Artenschutzprüfung etc.
Auftraggeber: Zweckverband Entwicklung Fliegerhorst
Planungszeitraum: 2013-2014
Gesamtfläche: ca. 7 ha
Planungsleistungen: Projektorganisation, Flächennutzungsplan, Bebauungsplan, Landschaftsplan, Artenschutzprüfung etc.

Fliegerhorst 0.3 Sportzentrum (2016)
Auftraggeber: Zweckverband Entwicklung Fliegerhorst
Planungszeitraum: 2013-2014
Gesamtfläche: ca. 7 ha
Planungsleistungen: Projektorganisation, Flächennutzungsplan, Bebauungsplan, Landschaftsplan, Artenschutzprüfung etc.
Auftraggeber: Zweckverband Entwicklung Fliegerhorst
Planungszeitraum: 2013-2014
Gesamtfläche: ca. 7 ha
Planungsleistungen: Projektorganisation, Flächennutzungsplan, Bebauungsplan, Landschaftsplan, Artenschutzprüfung etc.

Bebauungsplan „Neue Mitte II“
Auftraggeber: Stadt Erlensee
Planungszeitraum: 2015-2016
Gesamtfläche: ca. 9,8 ha
Planungsleistungen: Aufstellung Bebauungsplan, Aufstellung Landschaftsplan, Gutachten zur Bauleitplanung, Ausgleichsplanung
Auftraggeber: Stadt Erlensee
Planungszeitraum: 2015-2016
Gesamtfläche: ca. 9,8 ha
Planungsleistungen: Aufstellung Bebauungsplan, Aufstellung Landschaftsplan, Gutachten zur Bauleitplanung, Ausgleichsplanung

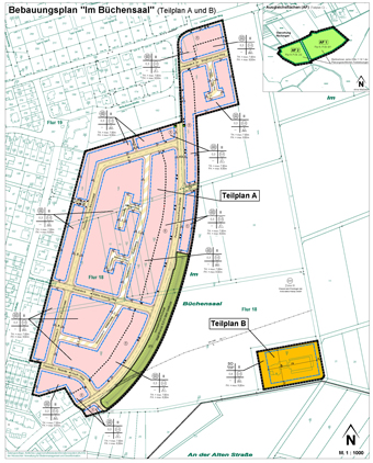
Bebauungsplan „Büchensaal“
Auftraggeber: Stadt Erlensee
Planungszeitraum: 2014-2015
Gesamtfläche: ca. 8,7 ha
Planungsleistungen: Aufstellung Bebauungsplan, Aufstellung Landschaftsplan, Gutachten zur Bauleitplanung, Ausgleichsplanung
Auftraggeber: Stadt Erlensee
Planungszeitraum: 2014-2015
Gesamtfläche: ca. 8,7 ha
Planungsleistungen: Aufstellung Bebauungsplan, Aufstellung Landschaftsplan, Gutachten zur Bauleitplanung, Ausgleichsplanung

Bebauungsplan „Südlich der Adolf Reichwein Str.“
Auftraggeber: Gemeinde Rodenbach
Planungszeitraum: 2007-2017
Gesamtfläche: ca. 20 ha
Planungsleistungen: Aufstellung Bebauungsplan, Aufstellung Landschaftsplan, Gutachten zur Bauleitplanung, Ausgleichsplanung
Auftraggeber: Gemeinde Rodenbach
Planungszeitraum: 2007-2017
Gesamtfläche: ca. 20 ha
Planungsleistungen: Aufstellung Bebauungsplan, Aufstellung Landschaftsplan, Gutachten zur Bauleitplanung, Ausgleichsplanung

Bebauungsplan „Leimenkaute“
Auftraggeber: Gemeinde Egelsbach
Planungszeitraum: 2012-2015
Gesamtfläche: ca. 12 ha
Planungsleistungen: Aufstellung Bebauungsplan, Aufstellung Landschaftsplan, Gutachten zur Bauleitplanung, Ausgleichsplanung
Auftraggeber: Gemeinde Egelsbach
Planungszeitraum: 2012-2015
Gesamtfläche: ca. 12 ha
Planungsleistungen: Aufstellung Bebauungsplan, Aufstellung Landschaftsplan, Gutachten zur Bauleitplanung, Ausgleichsplanung

Bebauungsplan Gewerbepark „Birkenhain“
Auftraggeber: Gemeinde Freigericht
Planungszeitraum: 2014 - 2015
Gesamtfläche: ca. 5 ha
Planungsleistungen: Aufstellung Bebauungsplan, Aufstellung Landschaftsplan, Gutachten zur Bauleitplanung, Ausgleichsplanung
Auftraggeber: Gemeinde Freigericht
Planungszeitraum: 2014 - 2015
Gesamtfläche: ca. 5 ha
Planungsleistungen: Aufstellung Bebauungsplan, Aufstellung Landschaftsplan, Gutachten zur Bauleitplanung, Ausgleichsplanung
