
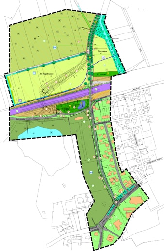
Artenschutzgutachten zum Bebauungsplan Wohngebiet „Leimenkaute“
Auftraggeber: Gemeinde Egelsbach
Planungszeitraum: 2009-2012
Gesamtfläche: ca. 4,1 ha
Planungsleistungen: städtebaulicher Gestaltungsplan, Bebauungsplan, Landschaftsplan, Gutachten zur Bauleitplanung (Lärm, Artenschutz, Biotopschutz, Boden), Freiraumplanung, Ausgleichsplanung
Auftraggeber: Gemeinde Egelsbach
Planungszeitraum: 2009-2012
Gesamtfläche: ca. 4,1 ha
Planungsleistungen: städtebaulicher Gestaltungsplan, Bebauungsplan, Landschaftsplan, Gutachten zur Bauleitplanung (Lärm, Artenschutz, Biotopschutz, Boden), Freiraumplanung, Ausgleichsplanung

Artenschutzgutachten zum Bebauungsplan Wohngebiet „Am Weides“
Auftraggeber: Stadt Maintal
Planungszeitraum: 2010-2011
Gesamtfläche: ca. 4,5 ha
Planungsleistungen: städtebaulicher Gestaltungsplan, Bebauungsplan, Landschaftsplan, Gutachten zur Bauleitplanung (Lärm, Artenschutz), Freiraumplanung, Ausgleichsplanung
Auftraggeber: Stadt Maintal
Planungszeitraum: 2010-2011
Gesamtfläche: ca. 4,5 ha
Planungsleistungen: städtebaulicher Gestaltungsplan, Bebauungsplan, Landschaftsplan, Gutachten zur Bauleitplanung (Lärm, Artenschutz), Freiraumplanung, Ausgleichsplanung

Artenschutzgutachten zum Bebauungsplan „Nordumgehung Sinntal"
Auftraggeber: Gemeinde Sinntal
Planungszeitraum: 2004-2015
Gesamtfläche: ca. 14 ha
Planungsleistungen: Landschaftspflegerischer Begleitplan, Artenschutzgutachten, FFH-Prüfung, Bebauungsplan
Auftraggeber: Gemeinde Sinntal
Planungszeitraum: 2004-2015
Gesamtfläche: ca. 14 ha
Planungsleistungen: Landschaftspflegerischer Begleitplan, Artenschutzgutachten, FFH-Prüfung, Bebauungsplan

Artenschutzgutachten zum Bebauungsplan „K 904“
Auftraggeber: Hessen Mobil, Gelnhausen
Planungszeitraum: 2001-2017
Gesamtfläche: ca. 19 ha
Planungsleistungen: Landschaftspflegerischer Begleitplan mit Artenschutzgutachten
Auftraggeber: Hessen Mobil, Gelnhausen
Planungszeitraum: 2001-2017
Gesamtfläche: ca. 19 ha
Planungsleistungen: Landschaftspflegerischer Begleitplan mit Artenschutzgutachten
