Freianlagen

Bei der Gestaltung von Außenanlagen innerhalb bebauter Strukturen und in der freien Landschaft legen wir besonderen Wert auf eine ortsgerechte individuelle Planung. So steht bei einer Gestaltung im landschaftlichen Kontext die harmonische Einbindung in die Umgebung und eine standortgerechte Verwendung der Pflanzen im Vordergrund.

Unsere Außenanlagen im Siedlungsbereich zeichnen sich durch eine hochwertige Gestaltung aus, die in Raumgliederung und Ausstattung auf die Anforderungen der jeweiligen Nutzergruppen ausgerichtet ist. Einen besonderen Schwerpunkt unseres Büros bildet hierbei die Spielplatzgestaltung für alle Altersgruppen.


Beispiele aus der Praxis:


Wasserspielplatz „Im Brühl“

Auftraggeber: Gemeinde Egelsbach
Planungszeitraum: 2007-2009
Gesamtfläche: 1000 m²
Planungsleistungen: Entwurf, Bauleitung, Pflegebetreuung


Grünanlage Altenwohnheim, „Seniorenspielplatz

Auftraggeber: Gemeinde Egelsbach
Planungszeitraum: 2009-2011
Gesamtfläche: ca. 2000 m²
Planungsleistungen: Entwurf, Bauleitung, Pflegebetreuung


Rathausvorplatz und Rathauswiese Erlensee

Auftraggeber: Gemeinde Erlensee
Planungszeitraum: 2008-2009
Gesamtfläche: ca. 1,1 ha
Planungsleistungen: Gestaltungsplan, Ausführungsplanung, Bauleitung


Anbindung des Neubaugebietes „Auf dem Hainspiel“ an die Regionalparkroute

Auftraggeber: Gemeinde Niderdorfelden
Planungszeitraum: 2004-2006
Gesamtfläche: ca. 3000 m²
Planungsleistungen: Konzeption, Entwurf, Ausführungsplanung, Bauleitung


Landschaftliche Gestaltung Grünzug Tränkbachaue

Auftraggeber: Gemeinde Egelsbach
Planungszeitraum: 2007
Gesamtfläche: ca. 3,2 ha
Planungsleistungen: Entwurf, Ausführungsplanung, Bauleitung, Pflegebetreuung


„Spielplatz Uhlandstraße“ (2017)

Auftraggeber: Gemeinde Hainburg
Planungszeitraum: 2014 - 2016
Gesamtfläche: ca. 1400 m²
Planungsleistungen: Entwurf, Ausführungsplanung, Bauleitung


„Spielplatz Uhlandstraße“ (2017)

Auftraggeber: Gemeinde Hainburg
Planungszeitraum: 2014 - 2016
Gesamtfläche: ca. 1400 m²
Planungsleistungen: Entwurf, Ausführungsplanung, Bauleitung


„Spielplatz Uhlandstraße“ (2017)

Auftraggeber: Gemeinde Hainburg
Planungszeitraum: 2014 - 2016
Gesamtfläche: ca. 1400 m²
Planungsleistungen: Entwurf, Ausführungsplanung, Bauleitung


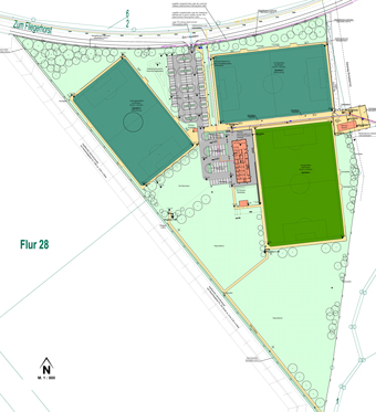
„Sportzentrum Erlensee“ Freianlage

Auftraggeber: Stadt Erlensee
Planungszeitraum: 2013 - 2016
Gesamtfläche: ca. 7 ha
Planungsleistungen: Entwurf, Ausführungsplanung, Bauleitung


„Sportzentrum Erlensee“ Freianlage

Auftraggeber: Stadt Erlensee
Planungszeitraum: 2013 - 2016
Gesamtfläche: ca. 7 ha
Planungsleistungen: Entwurf, Ausführungsplanung, Bauleitung


„Sportzentrum Erlensee“ Freianlage

Auftraggeber: Stadt Erlensee
Planungszeitraum: 2013 - 2016
Gesamtfläche: ca. 7 ha
Planungsleistungen: Entwurf, Ausführungsplanung, Bauleitung


„Regionalparkroute“

Auftraggeber: Regionalpark Ballungsraum RheinMain GmbH
Planungszeitraum: 2015 - 2016
Gesamtlänge: ca. 73 km
Planungsleistungen: Technische Planung Routenverlauf, thematische Konzeption, Trassengestaltung


„Regionalparkroute“ (Platzgestaltung)

Auftraggeber: Regionalpark Ballungsraum RheinMain GmbH
Planungszeitraum: 2015 - 2016
Gesamtlänge: ca. 73 km
Planungsleistungen: Technische Planung Routenverlauf, thematische Konzeption, Trassengestaltung


„Regionalparkroute“ (Platzgestaltung)

Auftraggeber: Regionalpark Ballungsraum RheinMain GmbH
Planungszeitraum: 2015 - 2016
Gesamtlänge: ca. 73 km
Planungsleistungen: Technische Planung Routenverlauf, thematische Konzeption, Trassengestaltung


„Regionalparkroute“ (Platzgestaltung)

Auftraggeber: Regionalpark Ballungsraum RheinMain GmbH
Planungszeitraum: 2015 - 2016
Gesamtlänge: ca. 73 km
Planungsleistungen: Technische Planung Routenverlauf, thematische Konzeption, Trassengestaltung